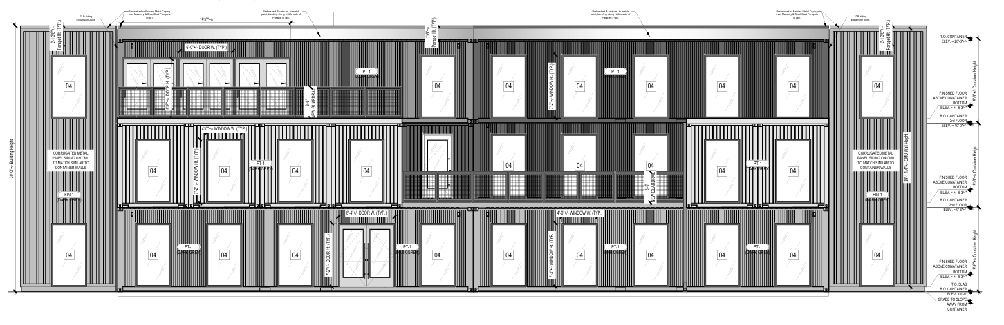
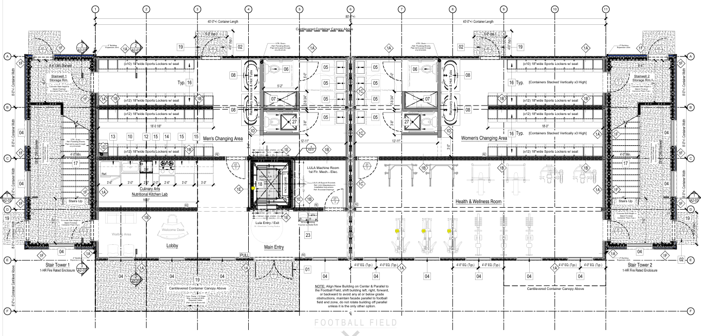
Detroit Architect is currently working on a project for another educational institution: The Harper Woods School District. The district is building a “fieldhouse” that will serve as a sports training facility and a career training institute simultaneously. Drawings have been completed and permitted with the bidding process underway. This unique project is entirely constructed from shipping containers, and will have boys’ and girls’ locker rooms, culinary instruction space, general career instruction classrooms, a workout area, playing field observation areas, and limited administrative offices. It is a 3-story building of approximately 8,000 square feet.


